Giải phóng mặt bằng dự án khu đô thị hơn 8.000 tỷ đồng của Vingroup

(Baohatinh.vn) - Với tổng vốn đầu tư hơn 8.000 tỷ đồng, dự án Khu đô thị mới Kỳ Trinh được kỳ vọng hình thành khu đô thị hiện đại, đồng bộ hạ tầng, góp phần thúc đẩy KT-XH của phường Sông Trí và khu vực phía Nam Hà Tĩnh.

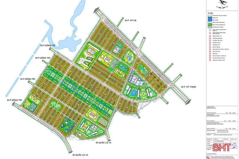
Dự án Khu đô thị mới Kỳ Trinh (nay thuộc phường Sông Trí) đã được Ban Quản lý Khu kinh tế tỉnh chấp thuận chủ trương đầu tư tại Quyết định số 83/QĐ-KKT ngày 29/5/2025. Dự án có tổng mức đầu tư hơn 8.000 tỷ đồng, quy mô 84,12 ha, bao gồm 2.596 căn nhà ở thương mại liền kề, 8 tòa nhà ở xã hội cao 10 tầng, cùng hệ thống hạ tầng kỹ thuật – xã hội đồng bộ như: trường học, bệnh viện, công viên, bãi đỗ xe, nhà văn hóa, trung tâm thương mại…

bqbht_br_a0fit-qh04-ktcq-model-copy.jpg
Quy hoạch chi tiết Dự án Khu đô thị mới Kỳ Trinh.

Nhà đầu tư thực hiện dự án là Công ty Cổ phần Đầu tư và Xây dựng Thái Sơn thuộc Tập đoàn Vingroup. Dự kiến dự án sẽ được khởi công vào đầu năm 2026. Đây là dự án có ý nghĩa đặc biệt quan trọng, góp phần hoàn thiện hạ tầng kỹ thuật, hình thành diện mạo đô thị mới cho phường Sông Trí trong tiến trình đô thị hóa.

Ngày 12/11/2025, Hội đồng Bồi thường, Hỗ trợ, Tái định cư Dự án Khu đô thị mới Kỳ Trinh (gọi tắt là Hội đồng) đã tổ chức họp tại 4 tổ dân phố: Quyền Hành, Quyền Thượng, Tây Trinh và Hoàng Trinh để thông tin triển khai thực hiện dự án, GPMB tới người dân.

bqbht_br_z7214795235090-b83483dac16e169ca5db03dfdf7717d9.jpg
Sáng 12/11, phường Sông Trí tổ chức họp dân 4 tổ dân phố Quyền Hành, Quyền Thượng, Tây Trinh và Hoàng Trinh.

Ông Trần Nam Vũ - Phó Chủ tịch UBND phường Sông Trí, Chủ tịch Hội đồng Bồi thường, Hỗ trợ, Tái định cư dự án cho biết: “Công tác GPMB luôn là khâu khó, bởi liên quan trực tiếp quyền lợi của Nhân dân. Do đó, chúng tôi xác định muốn làm tốt phải dựa vào dân, giải thích rõ ràng, công khai minh bạch từng bước, đồng thời xử lý kịp thời các vướng mắc phát sinh.

Hiện tại, phường phân công cán bộ phối hợp với tổ dân phố và các hộ dân triển khai kiểm kê, đất đai, tài sản. Dự kiến trong tháng 11/2025 sẽ hoàn thành kiểm kê, kiểm đếm; tiếp đó sẽ thực hiện các bước tiếp theo trong công tác GPMB như: Họp xác nhận nguồn gốc đất đai; lập phương án bồi thường để công khai thông tin GPMB với người dân; tổ chức chi trả tiền và bàn giao mặt bằng trong thời gian sớm nhất cho nhà đầu tư ...”.

bqbht_br_z7214795235119-3e880281adc16cbcfd206e09165f5809.jpg
bqbht_br_z7214795235105-1ff61684b5aa6f9756c682d66baecc5e.jpg
Hội đồng Bồi thường, Hỗ trợ, Tái định cư Dự án Khu đô thị mới Kỳ Trinh giải đáp các thắc mắc của người dân.

Dự án Khu đô thị Kỳ Trinh sẽ phải GPMB hơn 1.400 thửa đất nông nghiệp và 13 thửa đất ở, đất vườn của khoảng 600 hộ dân tại 4 tổ dân phố. Cụ thể: 68,7 ha đất nông nghiệp; 0,19 ha đất ở, vườn; 8,35 ha đất thủy lợi, đất giao thông do UBND phường quản lý cùng 6,88 ha đã GPMB từ các dự án đường trước đây...

Ông Nguyễn Xuân Thuỷ - Bí thư Chi bộ TDP Hoàng Trinh cho biết: “Hiện bà con đã nắm bắt thông tin về dự án, từ quy mô, tiến độ đến quyền lợi và chính sách bồi thường. Người dân đã đồng thuận với chủ trương bàn giao mặt bằng sớm. Nhiều hộ đã cam kết phối hợp để công tác GPMB được triển khai đúng tiến độ, góp phần hình thành khu đô thị hiện đại, nâng cao đời sống cho cộng đồng...".

Hiện nay, công tác GPMB tại dự án mới chỉ ở giai đoạn đầu triển khai nhưng những nỗ lực của cấp ủy, chính quyền và cán bộ cơ sở phường Sông Trí đã tạo tiền đề quan trọng, để người dân hiểu rõ lợi ích lâu dài, từng bước đồng thuận, góp phần bảo đảm tiến độ bàn giao mặt bằng cho nhà đầu tư.

bqbht_br_mjahsww-4074.jpg
Phối cảnh 3D toàn cảnh Dự án Khu đô thị mới Kỳ Trinh.

Dự án Khu đô thị mới Kỳ Trinh là một trong những dự án trọng điểm, có vai trò then chốt trong chiến lược phát triển không gian đô thị trung tâm của phường. Nhận thức được tầm quan trọng này, ngay từ những bước đầu, Đảng ủy và UBND phường đã xác định GPMB là nhiệm vụ chính trị trọng tâm, phải triển khai nghiêm túc, khoa học, nhưng đồng thời phải đảm bảo sự đồng thuận của Nhân dân.

Chúng tôi đã chỉ đạo các phòng, ban chuyên môn phối hợp chặt chẽ, bám sát quy trình GPMB. Khi bà con hiểu rõ, nắm chắc thông tin và thấy lợi ích lâu dài của dự án, sự đồng thuận sẽ được hình thành tự nhiên, từ đó công tác GPMB sẽ thuận lợi, nhanh chóng và hiệu quả hơn...

Bí thư Đảng uỷ phường Sông Trí Nguyễn Hoài Sơn

Chủ đề Vingroup

Đọc thêm

Giá cây hành tăm giảm sâu, nông dân thất thu

Giá cây hành tăm giảm sâu, nông dân thất thu

Tại xã Can Lộc (Hà Tĩnh), người dân đang tập trung tỉa cây hành tăm bán. Tuy nhiên, thay vì niềm vui được mùa, nhiều nông dân đang chồng chất nỗi lo khi giá hành cây trên thị trường giảm sâu.
Soi đèn "săn" rươi ở Hà Tĩnh

Soi đèn "săn" rươi ở Hà Tĩnh

Mùa rươi vào vụ, người dân Đức Quang (Hà Tĩnh) nhộn nhịp ra đồng khai thác đặc sản trên diện tích 70 ha. Rươi chất lượng vượt trội, giá cao hơn thị trường, thu hút thương lái khắp nơi.
"Trao cần câu" cho người nghèo

"Trao cần câu" cho người nghèo

Các giải pháp đồng bộ, quyết liệt không chỉ giúp bà con xã Sơn Tiến (Hà Tĩnh) ổn định cuộc sống mà còn góp phần thay đổi tư duy, khơi dậy ý chí vươn lên thoát nghèo bền vững.
Ngư dân Hà Tĩnh hối hả vươn khơi

Ngư dân Hà Tĩnh hối hả vươn khơi

Sau mưa bão, ngư dân Hà Tĩnh hối hả ra khơi trở lại. Từ thuyền nhỏ đến tàu lớn, bà con chủ động thích ứng thời tiết, khôi phục sản xuất, kỳ vọng những chuyến biển thuận lợi.
Tài chính thị trường ngày 10/11: Rộ hiện tượng “mua suất” nhà ở xã hội bán lại

Tài chính thị trường ngày 10/11: Rộ hiện tượng “mua suất” nhà ở xã hội bán lại

Tình trạng “xếp chỗ, sang tay suất mua” nhà ở xã hội đang khiến chính sách an sinh bị méo mó. Bộ Xây dựng đề nghị siết chặt, minh bạch quy trình và tăng mức xử phạt để ngăn trục lợi từ chính sách này. Chi tiết có trong Bản tin Tài chính thị trường hôm nay của Báo và Phát thanh, truyền hình Hà Tĩnh.
Lãi suất huy động vốn “nóng” trở lại

Lãi suất huy động vốn “nóng” trở lại

Lãi suất huy động vốn “nóng” trở lại khi loạt ngân hàng ở Hà Tĩnh điều chỉnh tăng, qua đó tạo sức hút với người gửi tiền và là cơ hội cho dòng vốn chảy vào nền kinh tế giai đoạn cuối năm.
Giữ nguồn rau sạch cho thị trường trong mùa mưa

Giữ nguồn rau sạch cho thị trường trong mùa mưa

Rau màu vụ Đông thường khó trồng và mất nhiều công chăm sóc, nhưng nông dân Hà Tĩnh vẫn nỗ lực áp dụng kỹ thuật để trồng, giữ nguồn rau sạch phục vụ thị trường dịp cuối năm.
Cam Thượng Lộc được mùa, được giá

Cam Thượng Lộc được mùa, được giá

Người trồng cam Thượng Lộc (xã Đồng Lộc, Hà Tĩnh) phấn khởi bước vào vụ thu hoạch khi cam được mùa, được giá. Nhiều hộ còn livetream bán hàng để quảng bá, tiêu thụ hiệu quả hơn.