Ngôi nhà vườn này giúp bạn sống hài hòa với thiên nhiên

(Baohatinh.vn) - Ngôi nhà nằm ở xã Đồng Trúc, huyện Thạch Thất, Hà Nội có không gian sống hài hòa với thiên nhiên, mang phong cách nhà vườn Bắc bộ với giếng nước đá ong, bàn ghế gỗ, ao cá...

Ngôi nhà vườn này giúp bạn sống hài hòa với thiên nhiên

Công trình do kiến trúc sư Tạ Đình Văn (Công ty 365 Design) cùng cộng sự Nguyễn Như Thanh, Nguyễn Hoàng Tú lên ý tưởng thiết kế và thực hiện thi công.

Ngôi nhà vườn này giúp bạn sống hài hòa với thiên nhiên

Dự án sử dụng vật liệu hoàn thiện có sẵn ở địa phương kết hợp với cây xanh để tạo nên một không gian kiến trúc hiện đại hòa nhập với môi trường xung quanh.

Ngôi nhà vườn này giúp bạn sống hài hòa với thiên nhiên

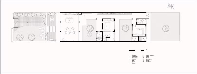
Ngôi nhà có diện tích 200m2, nằm trên khu đất rộng 560m2 ở xã Đồng Trúc, huyện Thạch Thất.

Ngôi nhà vườn này giúp bạn sống hài hòa với thiên nhiên

Lối đi dẫn vào nhà nằm trên ao cá.

Ngôi nhà vườn này giúp bạn sống hài hòa với thiên nhiên

Lấy thiên nhiên là chủ đạo cho ý tưởng kiến trúc, ngôi nhà một tầng được thiết kế với những khoảng mở tối đa, giúp con người tiếp cận và gần gũi với thiên nhiên.

Ngôi nhà vườn này giúp bạn sống hài hòa với thiên nhiên

Không gian phòng khách mang nét hoài cổ với sự hiện diện của chiếc quạt trần kim loại, bộ ghế ngồi xưa.

Ngôi nhà vườn này giúp bạn sống hài hòa với thiên nhiên

Cửa kính giúp thu hết khung cảnh ngoài vườn vào tầm mắt cho không gian tiếp khách thêm sinh động.

Ngôi nhà vườn này giúp bạn sống hài hòa với thiên nhiên

Khu vực bếp và bàn ăn được bố trí nhìn ra quang cảnh thanh bình của khu vườn phía trước.

Ngôi nhà vườn này giúp bạn sống hài hòa với thiên nhiên

Để phân chia ranh giới bếp và góc dùng bữa, gạch bông cổ điển được sử dụng cho lát sàn bên dưới bộ bàn ăn gỗ.

Ngôi nhà vườn này giúp bạn sống hài hòa với thiên nhiên

Hiên nhà bố trí bàn ghế nghỉ thuận tiện bên cạnh giá sách. Đây là nơi gia chủ có thể ngồi nghỉ ngơi, nhâm nhi tách trà và thưởng hoa trong vườn.

Ngôi nhà vườn này giúp bạn sống hài hòa với thiên nhiên

Mảnh vườn nhỏ ở sân trong. Giếng trời giúp lấy sáng thông gió tự nhiên cho cây cối phát triển tốt tươi.

Ngôi nhà vườn này giúp bạn sống hài hòa với thiên nhiên

Giếng nước đá ong bên trong vườn.

Ngôi nhà vườn này giúp bạn sống hài hòa với thiên nhiên

Lối đi lát xi măng sạch sẽ, bên trên là mái che với những thanh nứa xếp sát nhau.

Ngôi nhà vườn này giúp bạn sống hài hòa với thiên nhiên

Nội thất phòng ngủ giản dị với đồ gỗ nội thất chủ đạo.

Ngôi nhà vườn này giúp bạn sống hài hòa với thiên nhiên

Gạch bông thông gió được sử dụng giúp lấy sáng cho khu vực phòng tắm.

Ngôi nhà vườn này giúp bạn sống hài hòa với thiên nhiên

Ngôi nhà vào ban đêm.

Ngôi nhà vườn này giúp bạn sống hài hòa với thiên nhiên

Bản vẽ ngôi nhà.

Ngôi nhà vườn này giúp bạn sống hài hòa với thiên nhiên

Ấn tượng với kiến trúc ngôi nhà, tạp chí kiến trúc danh tiếng của Mỹ Archdaily mới đây đã giới thiệu công trình này trên trang web chính thức.

(Ảnh: Hoàng Lê)

Đọc thêm

Sự thật về đợt rét như 'kỷ băng hà' đầu tháng 1

Sự thật về đợt rét như 'kỷ băng hà' đầu tháng 1

Theo các mô hình dự báo thì đúng là có khả năng có không khí lạnh về miền Bắc vào đầu tháng 1 (đợt đầu tiên có thể là ngày 3/1). Vì đang là tháng chính đông nên việc xuất hiện các đợt không khí lạnh mạnh cũng là việc bình thường.
Những "y, bác sỹ đặc biệt" giữa đại ngàn Trường Sơn

Những "y, bác sỹ đặc biệt" giữa đại ngàn Trường Sơn

Không dừng lại ở việc tiếp nhận động vật hoang dã để thả về tự nhiên, nhiều cán bộ ở Vườn Quốc gia Vũ Quang (Hà Tĩnh) còn là những "y, bác sỹ" làm nhiệm vụ cứu chữa, điều trị cho những cá thể bị thương, suy kiệt trước khi chúng được trở lại môi trường tự nhiên.
Công dụng của vỏ chanh

Công dụng của vỏ chanh

Vỏ chanh thường bị vứt bỏ sau khi sử dụng, nhưng bộ phận này lại chứa hàm lượng cao chất chống oxy hóa, chất xơ và hoạt chất sinh học quý. Việc sử dụng đúng cách có thể mang lại nhiều lợi ích cho sức khỏe.
Tin vui cho người thích uống trà

Tin vui cho người thích uống trà

Cho dù là để giảm cân, cải thiện tiêu hóa hay chỉ để thưởng thức hương vị đặc trưng, trà xanh cũng cần được uống điều độ và đúng thời điểm.