Studio ảnh cưới ở TP HCM nổi bật trên tạp chí kiến trúc danh tiếng của Mỹ

(Baohatinh.vn) - Tạp chí kiến trúc danh tiếng của Mỹ Archdaily mới đây giới thiệu tiệm ảnh cưới Rin Wedding Studio do KTS Nguyễn Thanh Tân cùng các cộng sự Nguyễn Thị Thiên Thanh, Vũ Hồng Nhung thiết kế nằm trên đường Hồ Văn Huê, quận Phú Nhuận, TP HCM.

Studio ảnh cưới ở TP HCM nổi bật trên tạp chí kiến trúc danh tiếng của Mỹ

Hiện trạng công trình là một căn nhà phố mặt tiền có diện tích 6x13m.

Studio ảnh cưới ở TP HCM nổi bật trên tạp chí kiến trúc danh tiếng của Mỹ

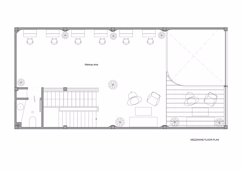
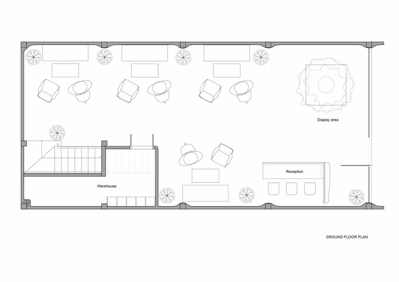
Để phù hợp cho hoạt động studio ảnh cưới, các KTS đã đập bỏ các vách ngăn không cần thiết, chỉ giữ lại đúng phần cầu thang bằng bê tông đá mài. Không gian khá thấp và hẹp so với yêu cầu đề ra ban đầu là vừa có chỗ tiếp khách, vừa có không gian make up và không gian trưng bày cho thuê áo cưới.

Studio ảnh cưới ở TP HCM nổi bật trên tạp chí kiến trúc danh tiếng của Mỹ

Mặc dù đường Hồ Văn Huê dài chưa đầy 500 m, nhưng hai bên đường đầy những cửa hàng cho thuê dịch vụ cưới. Các chủ cửa hàng tại đây phần lớn sử dụng tấm alunium để ốp dựng mặt tiền và lắp đầy các loại bảng hiệu quảng cáo. Khi đi trên trục đường này, nhiều người có cảm giác như đi trong một con hẻm hai bên là mảng đặt, nặng nề, những khối nhà cao như những chiếc hộp diêm xếp cạnh nhau.

Studio ảnh cưới ở TP HCM nổi bật trên tạp chí kiến trúc danh tiếng của Mỹ

Được lấy ý tưởng từ chính đường cong của người phụ nữ, tạo hình mặt đứng công trình như một chiếc váy cưới.

Studio ảnh cưới ở TP HCM nổi bật trên tạp chí kiến trúc danh tiếng của Mỹ

Công trình nằm chính diện hướng Tây, buổi chiều rất nóng, chính vì vậy các KTS đưa ra giải pháp là tạo lớp đệm không khí trước mặt tiền để hạn chế tia nắng tiếp xúc trực tiếp với không gian sử dụng bên trong.

Studio ảnh cưới ở TP HCM nổi bật trên tạp chí kiến trúc danh tiếng của Mỹ

Giải pháp này làm giảm lượng điều hòa bên trong công trình đáng kể.

Studio ảnh cưới ở TP HCM nổi bật trên tạp chí kiến trúc danh tiếng của Mỹ

Những tấm poly trong được xếp chồng lên nhau như hệ lá sách, không khí có thể lùa vào và ra, mỗi tấm có thể điều chỉnh được góc nghiêng thông qua chi tiết pát đỡ, các góc nghiêng của tấm poly thay đổi trên mặt đứng tạo cảm giác chuyển động khi ngắm nhìn công trình từ xa.

Studio ảnh cưới ở TP HCM nổi bật trên tạp chí kiến trúc danh tiếng của Mỹ

Không gian tiếp khách ở tầng 1.

Studio ảnh cưới ở TP HCM nổi bật trên tạp chí kiến trúc danh tiếng của Mỹ

Tòa nhà xuất hiện, hòa vào sự hối hả và nhộn nhịp của con phố, tuy nhiên tạo nên sự khác biệt tích cực và sự hấp dẫn trực quan. Ngoài ra, giảm chi phí sử dụng máy lạnh trong tòa nhà.

Studio ảnh cưới ở TP HCM nổi bật trên tạp chí kiến trúc danh tiếng của Mỹ

Nhà kho dưới gầm cầu thang dẫn lên tầng trên.

Studio ảnh cưới ở TP HCM nổi bật trên tạp chí kiến trúc danh tiếng của Mỹ

Nội thất gỗ đem lại cảm giác tối giản nhưng ấm cúng.

Studio ảnh cưới ở TP HCM nổi bật trên tạp chí kiến trúc danh tiếng của Mỹ

Khoảng thông giữa tầng 1 và gác lửng.

Studio ảnh cưới ở TP HCM nổi bật trên tạp chí kiến trúc danh tiếng của Mỹ

Gác lửng là khu vực trang điểm.

Studio ảnh cưới ở TP HCM nổi bật trên tạp chí kiến trúc danh tiếng của Mỹ

Bên trong không gian trưng bày váy cưới các KTS cố gắng tạo cảm giác rộng nhất có thể.

Studio ảnh cưới ở TP HCM nổi bật trên tạp chí kiến trúc danh tiếng của Mỹ

Để có thể trưng bày được nhiều váy cưới, một thanh treo váy hình tròn được bố trí để khách hàng có thể dễ dàng chọn lựa những bộ váy cưới ưng ý nhất mà không phải di chuyển quá nhiều.

Studio ảnh cưới ở TP HCM nổi bật trên tạp chí kiến trúc danh tiếng của Mỹ

Bên trên trần là hình vòm 3 chiều, thiết kế chiếu sáng bao gồm đèn chiếu váy và đèn nhỏ liti, tạo hiệu ứng ngôi sao. Cô dâu thử váy cưới sẽ cảm giác như được đứng dưới bầu trời đầy sao, những chiếc váy cưới sẽ trở nên lộng lẫy hơn bên trong không gian này.

Studio ảnh cưới ở TP HCM nổi bật trên tạp chí kiến trúc danh tiếng của Mỹ

Phòng thử đồ bố trí gương ở nhiều phía để cô dâu có thể ngắm nhìn trọn vẹn chiếc váy cưới của mình.

Studio ảnh cưới ở TP HCM nổi bật trên tạp chí kiến trúc danh tiếng của Mỹ

Cầu thang dẫn từ tầng 3 lên tầng 4.

Studio ảnh cưới ở TP HCM nổi bật trên tạp chí kiến trúc danh tiếng của Mỹ

Một phòng trưng bày trang phục cưới khác ở tầng 4.

Studio ảnh cưới ở TP HCM nổi bật trên tạp chí kiến trúc danh tiếng của Mỹ

Phòng thử đồ ở tầng 4.

Studio ảnh cưới ở TP HCM nổi bật trên tạp chí kiến trúc danh tiếng của Mỹ

Phòng trưng bày trang phục ăn hỏi, cưới ở tầng 2.

Studio ảnh cưới ở TP HCM nổi bật trên tạp chí kiến trúc danh tiếng của Mỹ
Studio ảnh cưới ở TP HCM nổi bật trên tạp chí kiến trúc danh tiếng của Mỹ
Studio ảnh cưới ở TP HCM nổi bật trên tạp chí kiến trúc danh tiếng của Mỹ
Studio ảnh cưới ở TP HCM nổi bật trên tạp chí kiến trúc danh tiếng của Mỹ

(Ảnh: Quang Tran)

(Theo Archdaily)

Đọc thêm

Chế độ ăn tốt cho người bị suy giáp

Chế độ ăn tốt cho người bị suy giáp

Suy giáp là bệnh mạn tính, nhưng nếu điều trị đúng và theo dõi đều đặn, người bệnh hoàn toàn có thể sống khỏe mạnh. Hãy chú ý đến chế độ ăn, dùng thuốc đúng hướng dẫn và tái khám định kỳ..
Viêm mống mắt có thể gây biến chứng

Viêm mống mắt có thể gây biến chứng

Viêm mống mắt là một bệnh lý khá phổ biến, ảnh hưởng trực tiếp đến sức khỏe đôi mắt. Bệnh cần được phát hiện và điều trị kịp thời, nếu chậm trễ có thể dẫn đến nhiều biến chứng nghiêm trọng.
Thú vị trend uống nước... ăn luôn cả ly

Thú vị trend uống nước... ăn luôn cả ly

Không chỉ thưởng thức đồ uống, trào lưu “uống nước xong ăn luôn cả ly” với chiếc cốc làm từ bánh ốc quế đang trở thành lựa chọn cho những ai yêu thích trải nghiệm mới lạ tại Hà Tĩnh.
Xuân sớm nơi “rốn lũ” Tiền Phong

Xuân sớm nơi “rốn lũ” Tiền Phong

Vùng “rốn lũ” Tiền Phong (xã Đức Quang, Hà Tĩnh) đã hồi sinh sau các đợt thiên tai dồn dập trong năm 2025. Gác lại khó khăn, người dân đang gom góp để chuẩn bị một cái Tết ấm áp, sum vầy.
Gen Z loay hoay "ứng phó" với... Tết

Gen Z loay hoay "ứng phó" với... Tết

Tết Nguyên đán cận kề, nhiều bạn trẻ Hà Tĩnh loay hoay giữa công việc cuối năm và những áp lực vô hình từ các cuộc gặp gỡ họ hàng, với nỗi lo về thu nhập, hôn nhân và quà cáp ngày Tết.
Người trẻ làm thêm: Những áp lực vô hình

Người trẻ làm thêm: Những áp lực vô hình

Hiện nay, nhiều học sinh, sinh viên tại Hà Tĩnh đã chủ động đi làm thêm để tự lập. Tuy nhiên, đằng sau lựa chọn tích cực ấy cũng xuất hiện không ít áp lực đáng suy ngẫm.