(Baohatinh.vn) - Tạp chí kiến trúc danh tiếng của Mỹ Archdaily mới đây giới thiệu căn nhà mái cỏ có tên Louvers House do KTS Nguyễn Hoàng Mạnh (công ty MIA Design Studio) thiết kế ở Thảo Điền, quận 2, TP Hồ Chí Minh.
Lối vào Louvers House.
Phòng khách nhìn ra hồ bơi ở tầng 2. Theo quan điểm thiết kế của MIA Design Studio, Louvers House không chỉ là nơi bảo vệ, che chắn con người khỏi yếu tố tác động của môi trường mà còn phản ánh phong cách sống của gia chủ.
Phòng khách liền bếp.
Bãi cỏ xanh mướt bên hồ bơi. MIA Design Studio cho hay, chủ nhân của Louvers House muốn tạo ra sự kết hợp giữa các không gian khác nhau trong ngôi nhà để gìn giữ sự kết nối truyền thống giữa các thế hệ trong một gia đình Việt Nam.
Phòng ngủ lớn được ngăn cách với phòng khách bằng một hồ cảnh.
Hồ cảnh ở tầng 2.
Thông tầng lớn, cùng sự kết hợp giữa mặt nước và ánh sáng trời nhằm kết nối tự nhiên, đã liên kết tất cả không gian các phòng.
Nguyên tắc này kết hợp với việc tận dụng khéo léo quy luật thông gió tự nhiên đã giữ cho ngôi nhà luôn trong lành, thông thoáng và mang lại cho gia đình những trải nghiệm mới mẻ, đầy cảm xúc. Với cách xử lý đó, cùng việc kết hợp cây xanh, gió và mặt nước, khoảng trống trong ngôi nhà đã trở thành một môi trường trong lành và thanh khiết như một chủ thể sống động, tạo nên sức sống cho ngôi nhà.
Mái cỏ xanh mướt của Louvers House.
Louvers House lung linh về đêm.
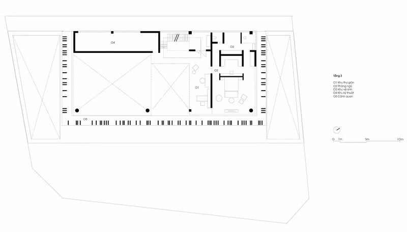
Ngôi nhà gồm 4 tầng. Tầng 1 có gara để xe, phòng gym, phòng trị liệu, khu thư giãn, phòng gia nhân, khu vệ sinh, khu bếp, kho, khu kỹ thuật.
Đèn được đặt âm bên trong tường bao, tạo nên sự độc đáo cho ngôi nhà.
Cận cảnh tường bao.
MIA Design Studio cho hay, ở phía trực diện với hướng mặt trời mọc, ngôi nhà tuy có thể đón ánh sáng mềm mại và chiếu góc chếch thẳng vào buổi sáng nhưng phải hứng chịu ánh sáng gay gắt vào buổi trưa. Đó cũng là lý do đơn vị thiết kế tạo ra mái ô-văng lớn để giảm nhiệt từ ánh sáng mặt trời ở góc cao và tận dụng hiệu ứng bóng đổ ngang từ hệ lam dọc để chào đón ánh sáng mặt trời ban sớm khiến cho ngôi nhà bừng sáng và rộng mở.
Khu thư giãn ngăn cách phòng khách và bể bơi.
Không gian chuyển tiếp là các bậc cấp được thiết kế nổi trên mặt nước nhằm tăng sự giao tiếp của con người đối với thiên nhiên.
Điều này mang đến cho người sử dụng cảm giác thư giãn như ở một biệt thự nghỉ dưỡng, giải tỏa những lo toan và bộn bề trong cuộc sống đô thị tất bật.
Nhờ sự kết hợp hài hòa giữa cảnh quan thiên nhiên đặc sắc, chiều sâu văn hóa và sức sống hiện đại của các đô thị lớn, Việt Nam nổi lên như một trong những điểm đến hấp dẫn nhất tại châu Á.
TV360 - nền tảng giải trí của Viettel Telecom chính thức sở hữu quyền truyền thông và khai thác phát sóng toàn bộ hệ thống giải đấu thuộc Liên đoàn Bóng đá châu Á (AFC) giai đoạn 2026 - 2029 trên mọi hạ tầng. Với 1.222 trận đấu trong 4 mùa giải, TV360 hướng tới trải nghiệm xem bóng đá châu Á liền mạch, đa nền tảng, giàu tương tác cho người hâm mộ Việt Nam.
Trong ký ức của tác giả Dương Thị Huyên, mùa đông là con đường làng xưa cũ, là mùi khói bếp quyện hương chè gừng của mẹ và những đôi chân nhỏ bé tới trường khấp khởi bao ước mơ.
Giữa thôn Hòa Thái, xã Đức Thọ, Hà Tĩnh, cây đa cổ thụ hàng trăm năm tuổi đứng trầm mặc, bộ rễ tạo thành dáng cổng làng tự nhiên, in dấu ký ức bao thế hệ.
Từ những giai điệu quê hương quen thuộc, Hà Tĩnh hiện lên gần gũi, sâu lắng trong cảm nhận của du khách. Âm nhạc trở thành nhịp cầu kết nối hành trình khám phá Hà Tĩnh đầy cảm xúc.
Hàng loạt bảo tàng và điểm tham quan nổi tiếng toàn cầu sẽ "biến mất" khỏi bản đồ du lịch năm 2026 do trùng tu, mở rộng quy mô hoặc đóng cửa vĩnh viễn sau thiên tai.
Người Chứt ở bản Giàng 2 (xã Hương Xuân, Hà Tĩnh) đón Tết Cha Leng 2025 trong không khí ấm cúng. Các cấp, ngành cùng đến chung vui và gửi tặng nhiều phần quà ý nghĩa.
Thủ tướng Chính phủ Phạm Minh Chính đề nghị ngành văn hóa, thể thao và du lịch cần tiếp tục “đổi mới tư duy, nhìn xa trông rộng, nghĩ sâu làm lớn”, phát huy trí tuệ, bản lĩnh để thực hiện có hiệu quả các mục tiêu, nhiệm vụ, giải pháp đã đề ra.
Các cổ vật, di vật được phát hiện tại khu vực Làng Chè (xã Sơn Kim 2) tạo nền tảng cho những nghiên cứu chuyên sâu hơn về khảo cổ học vùng núi Hà Tĩnh.
Trong ký ức mỗi người, đôi khi chỉ cần mùi thơm rất khẽ cũng đủ đánh thức ký ức tuổi thơ yên ả. Tản văn “Thơm những ngày đông” là miền nhớ dịu dàng được ủ ấm từ yêu thương như thế!
66 tác phẩm trên các lĩnh vực thơ, văn xuôi, nhiếp ảnh, hội họa, âm nhạc đã phản ánh vẻ đẹp con người, văn hóa vùng đất Tiên Điền, gửi gắm những suy ngẫm sâu sắc về đời sống.
Sau thời gian dài xuống cấp nghiêm trọng, đền Voi Quỳ (xã Thạch Khê, Hà Tĩnh) được tôn tạo, phục dựng, góp phần gìn giữ lịch sử – văn hóa và đáp ứng nhu cầu sinh hoạt tâm linh.
Triển lãm giới thiệu tới công chúng những tác phẩm mỹ thuật tiêu biểu, phản ánh sinh động đời sống, con người, thiên nhiên và những giá trị văn hóa đặc sắc của quê hương Hà Tĩnh.
Các nhà nghiên cứu lịch sử - khảo cổ của Bảo tàng Hà Tĩnh đang rất quan tâm trước thông tin phát hiện một khối lượng lớn tiền cổ tại địa bàn biên giới Sơn Kim 2.
Cùng với không khí hân hoan đón Giáng sinh trên toàn thế giới, người dân Hà Tĩnh đã có một đêm giáng sinh ấm áp, an lành trong niềm hân hoan, phấn khởi.
Mỗi mùa Giáng sinh về, ai cũng mong nhận được những món quà xinh xắn. Nhưng có những món quà không gói bằng giấy màu mà được làm nên từ yêu thương và sự sẻ chia...
Là khách sạn mang thương hiệu quốc tế đầu tiên tại tỉnh Nghệ An, Sheraton Vinh đánh dấu bước nâng tầm của ngành lưu trú cao cấp tại khu vực Bắc Trung Bộ.
Năm 2025, với sự quan tâm của cấp ủy, chính quyền, Nhân dân địa phương, bà con giáo dân Hà Tĩnh vượt qua bao khó khăn, đón một mùa giáng sinh đầm ấm, an lành, hạnh phúc.
Từ làng chài ven biển chuyển mình thành thủ phủ thể thao biển đến các đô thị không ngủ và vùng di sản trầm mặc, Việt Nam bước vào năm 2026 với diện mạo du lịch đa tầng trải nghiệm, đầy sức hút.
Có những mùa đông không bắt đầu từ gió lạnh, mà từ khoảng trống trong lòng người. Tháng Mười Hai này, tôi trở lại với những trang viết của bố, không để đối thoại, mà để lắng nghe.
Gắn bó sâu nặng với dân ca ví, giặm, Nghệ nhân Ưu tú Trần Văn Hoàng ở xã Đức Quang (Hà Tĩnh) dùng lời ca mộc mạc để ngợi ca Đảng, khơi dậy tinh thần gìn giữ và phát huy di sản.
Gần 95.000 lượt khán giả đã đến Ocean City ngày 20/12 vừa qua, cùng hơn 50 nghệ sĩ đình đám và 10 tiếng trình diễn liên tục tạo nên một siêu nhạc hội quy mô chưa từng có tại Việt Nam.
Những ngày này, các giáo xứ, giáo họ trên địa bàn Hà Tĩnh đang hối hả tập văn nghệ cho đêm Diễn nguyện Canh thức Giáng sinh – một "đặc sản" tinh thần của người Công giáo mỗi dịp Noel về.
Hoạt động diễn ra tại Hà Tĩnh nhằm kết nối cộng đồng yêu mến di sản của Nguyễn Du, đồng thời tôn vinh những đóng góp vô giá của ông cho nền văn hoá dân tộc và thế giới.
Lễ kỷ niệm 260 năm Ngày sinh Đại thi hào Nguyễn Du sẽ diễn ra vào tối 20/12 tại Quảng trường Thành Sen, phường Thành Sen. Chương trình được truyền hình trực tiếp trên VTV, Báo và phát thanh, truyền hình Hà Tĩnh và một số kênh truyền hình các địa phương.
Dân tộc Việt Nam và mảnh đất Hà Tĩnh rất đỗi tự hào khi đã sinh ra một danh nhân được UNESCO vinh danh đến 2 lần (1965, 2015) nhờ áng văn chương có sức lay động lòng người ở các quốc gia, các nền văn hóa, thể chế chính trị khác nhau.
Cuốn Truyện Kiều viết bằng chữ thư pháp được trưng bày tại nhà ở của Đại thi hào Nguyễn Du (xã Tiên Điền, Hà Tĩnh) để phục vụ du khách tham quan, chiêm ngưỡng.
Ba mươi năm bền bỉ dựng xây và vượt qua thử thách, Vietravel khẳng định bản lĩnh của thương hiệu lữ hành tiên phong. Lễ kỷ niệm thành lập và ra mắt nhận diện thương hiệu mới đánh dấu bước chuyển mình chiến lược, mở ra hành trình phát triển bền vững của đơn vị.