(Baohatinh.vn) - Ngôi nhà nhỏ của đôi vợ chồng trẻ ở Hà Tĩnh được giới thiệu trên Archdaily - website kiến trúc nhiều người xem nhất thế giới có trụ sở tại Mỹ - có diện tích 150m2 nằm trong khu đô thị mới của xã Thạch Trung, thành phố Hà Tĩnh.
Ngôi nhà được đặt tên T House do Công ty kiến trúc Dom Architect Studio thiết kế. Công trình được thi công trong khoảng 6 tháng, chi phí xây dựng là 1,2 tỷ.
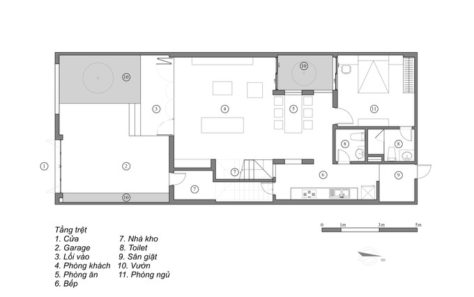
Ngôi nhà có 2 tầng, trong đó tầng 1 là khu vực sinh hoạt chung với phòng khách, phòng bếp, phòng ăn, 2 phòng WC khép kín và 1 phòng ngủ. Phần sân rộng trước nhà được thiết kế dùng để đỗ ôtô và xe máy. Cạnh đó là một khu vườn nhỏ làm nơi thư giãn cho gia chủ.
Cửa kính lớn ở phòng khách nhìn ra sân, vườn.
Kiến trúc sư (KTS) mô tả T House được thiết kế như là một chốn đi về yên bình dành cho cả gia đình trong nhịp sống hối hả của thành phố.
T House có cấu trúc không gian đơn giản vừa vặn với việc sắp xếp các khoảng trống, cây xanh, thông gió và chiếu sáng tự nhiên vừa đáp ứng nhu cầu sinh hoạt của gia chủ vừa tạo nên một không gian sống nhẹ nhàng gần gũi với thiên nhiên.
Phòng khách với chức năng là không gian chính, được đặt ở giữa nhà. Bên cạnh đó là bàn ăn.
Các không gian chung ở tầng một được kết nối với nhau để tạo ra tổng thể liền mạch. Nhà bếp được gia chủ yêu cầu tách biệt nhưng vẫn được KTS khéo léo thiết kế để kết nối với các không gian bên ngoài.
Phòng ngủ ở tầng một được thiết kế riêng biệt nhìn ra khoảng sân nhỏ trồng cây xanh.
Khoảng sân nhỏ bên cạnh phòng ngủ ở tầng 1.
Cầu thang dẫn lên tầng 2. Vật liệu hoàn thiện và nội thất đơn giản tiết kiệm chi phí đầu tư cũng là vấn đề được KTS chú trọng.
Lối đi dẫn ra ban công tầng 2.
Một trong hai phòng ngủ ở tầng 2 cũng nhìn ra khu vườn nhỏ làm khoảng thông tầng tương tự như phòng ngủ tầng 1.
Phòng ngủ còn lại nhìn ra ban công trồng hoa và cây cảnh.
Trong lịch sử các triều đại phong kiến Việt Nam có một danh nhân người Hà Tĩnh tài năng, phẩm hạnh lỗi lạc, không chỉ được trong nước ghi nhận mà còn được triều đình nhà Thanh (Trung Quốc) khâm phục, đó là Thám hoa Phan Kính quê xã Trường Lưu.
Ông Trần Văn Mạnh - Tổ trưởng Tổ đồng quản lý nghề cá số 2 (Tiên Điền, Hà Tĩnh) là hạt nhân trong việc tuyên truyền chống khai thác IUU, cùng ngư dân bảo vệ nguồn lợi thủy sản ven bờ.
Lễ kỷ niệm 310 năm Ngày sinh Thám hoa Phan Kính (1715-2025) là dịp để Hà Tĩnh tôn vinh một bậc danh nhân kiệt xuất, đồng thời khơi dậy, lan tỏa những giá trị văn hóa truyền thống tốt đẹp của quê hương.
Chocobomb – món tráng miệng với hiệu ứng chocolate tan chảy đầy cuốn hút cùng hương vị ngọt ấm đang trở thành gợi ý thú vị cho những ai muốn đổi vị trong những ngày đông
Với Hà Tĩnh, di sản Đại thi hào Nguyễn Du và kiệt tác Truyện Kiều là một “mỏ vàng” văn hóa tinh thần. Thế nhưng, dù đã có nhiều nỗ lực, đến nay, tiềm năng ấy vẫn chưa thực sự chuyển hóa thành sản phẩm du lịch xứng tầm.
Chả rươi Hương Tăng là đặc sản OCOP của xã Nghi Xuân (Hà Tĩnh), được chế biến từ rươi tươi theo quy trình truyền thống kết hợp kỹ thuật hiện đại, giữ trọn vị béo ngậy và hương thơm đặc trưng
Giữa vùng đồi Thượng Đức (Hà Tĩnh), thầy giáo Lê Hoài Nam đã có hơn 20 năm bền bỉ hiến máu tình nguyện, nấu cơm trong mùa dịch, tham gia cứu trợ đồng bào vùng thiên tai - bão lũ.
Một ngày đầu đông, tôi và nhà nghiên cứu văn hóa (NCVH) Lê Văn Tùng thả bộ từng bước chân trên lối xưa Thành Sen với bao hoài niệm về mảnh đất yêu dấu. Dường như 3 con người đang hòa vào một trong vóc dáng ông: một nhà giáo mẫu mực, một nhà hoạt động chính trị sắc sảo và một nhà NCVH uyên thâm.
Trường Lưu học hiệu (ở làng Trường Lưu, xã Lai Thạch, huyện Thiên Lộc xưa, nay thuộc xã Trường Lưu, tỉnh Hà Tĩnh) là ngôi trường nổi tiếng vào thế kỷ XVIII đến đầu thế kỷ XX, thu nhận và đào tạo hàng nghìn học trò từ khắp mọi miền đất nước.
Rươi Hà Tĩnh tập trung ở các xã ven sông như Đức Quang, Nghi Xuân… Mỗi vụ chỉ có vài đợt, mỗi đợt kéo dài 1–2 ngày, nên bà con phải tranh thủ từng giờ để kịp "săn lộc trời”.
Dự án tu bổ, tôn tạo các hạng mục Khu di tích cố Tổng Bí thư Hà Huy Tập nhằm bảo tồn giá trị lịch sử, nâng cao giáo dục truyền thống, hướng tới kỷ niệm 120 năm ngày sinh cố Tổng Bí thư.
Về với xã Mai Phụ (tỉnh Hà Tĩnh) không chỉ là về với ký ức, mà còn là hành trình của niềm tự hào, của khát vọng dựng xây quê hương mạnh giàu trong giai đoạn phát triển mới.
Giữa vô vàn món ăn hiện đại, vẫn có món ăn dân dã, gắn liền với tuổi thơ được nhiều người dân Hà Tĩnh yêu thích mỗi khi trời trở lạnh, đó là bỏng gạo hay bỏng ngô.
Những ngày này, dù mưa rét nhưng không khí vui tươi vẫn tràn ngập khắp TDP Vĩnh Phong (phường Trần Phú, Hà Tĩnh). Niềm hân hoan ấy được tạo nên nhờ tinh thần đoàn kết được xây đắp qua nhiều năm tháng.
Lễ hội đền Cả - Dinh đô Quan Hoàng Mười (phường Bắc Hồng Lĩnh, Hà Tĩnh) được tổ chức nhằm bảo tồn và phát huy các giá trị văn hóa của các lễ hội truyền thống trên địa bàn.
Khi những làn sương bắt đầu bảng lảng trên đỉnh non Hồng, tiếng chuông từ những ngôi chùa, đền thờ vang vọng cũng là lúc báo hiệu Hà Tĩnh bước vào mùa du lịch văn hóa tâm linh.
Bước vào mùa du lịch văn hóa tâm linh, trong 2 ngày cuối tuần, di tích quốc gia đền Chợ Củi (xã Nghi Xuân, tỉnh Hà Tĩnh) đã thu hút gần 3.000 lượt khách tham quan, dâng hương.
Trường Lưu không chỉ mang vẻ đẹp của một miền quê thanh bình mà còn lưu giữ những giá trị văn hóa đặc sắc được thế giới vinh danh. Các di sản ấy được gìn giữ và phát huy, trở thành niềm tự hào của quê hương.
Sau bão số 10, khung cảnh “Hoan Châu đệ nhất danh lam” – chùa Hương Tích (xã Can Lộc, Hà Tĩnh) trở nên tan hoang, nhiều hạng mục hư hỏng chưa được khắc phục, trong khi mùa du lịch văn hóa tâm linh đang đến gần.
Về với làng rèn Trung Lương (phường Bắc Hồng Lĩnh), du khách sẽ được khám phá về nghề rèn trăm năm tuổi và hành trình giữ lửa, giữ hồn cho văn hóa làng quê Hà Tĩnh
Khi xã Cẩm Duệ (Hà Tĩnh) chìm sâu trong dòng nước xiết do mưa lớn và xả tràn Kẻ Gỗ, người nông dân Nguyễn Văn Hương (SN 1980) đã biến chiếc thuyền độc mộc thành cây cầu nối sự sống tại "túi lũ" thôn Na Trung. Bất chấp hiểm nguy, anh đã tiếp sức kịp thời và trấn an tinh thần cho hơn 270 hộ dân bị cô lập nơi đây.
Câu chuyện cảm động về cô bé Nguyễn Anh Thư (xã Hương Sơn, tỉnh Hà Tĩnh) chiến thắng bệnh tật, nghị lực vươn lên học giỏi đã truyền cảm hứng sống tích cực cho mọi người.
Với tiết mục độc tấu sáo “Nhớ về dòng sông” đầy cảm xúc, Nguyễn Công Minh (quê xã Kỳ Anh, Hà Tĩnh) - sinh viên năm 4 Khoa Âm nhạc Di sản truyền thống - Học viện Âm nhạc Huế xuất sắc giành HCV tại Liên hoan Âm nhạc toàn quốc mở rộng năm 2025.
Từ quê hương Hà Tĩnh, Truyện Kiều của Nguyễn Du đã trở thành sợi dây nối người Việt qua bao thế hệ, trong lời ru, câu hát, trong ký ức và trong cả cách ta yêu thương, cống hiến hôm nay.
Những ngày qua, giữa tâm lũ Hà Tĩnh, hình ảnh ông Phạm Viết Định - Trưởng thôn An Việt (xã Cẩm Bình, Hà Tĩnh) được lan tỏa mạnh mẽ khiến nhiều người bày tỏ sự cảm phục.
Bún riêu cua, món ăn giản dị đậm chất Bắc Bộ được người Hà Tĩnh biến tấu khéo léo để hợp khẩu vị nhưng vẫn giữ vị thanh ngọt đặc trưng đã trở thành món ăn quen thuộc của nhiều người.
Lễ kỷ niệm 310 năm năm sinh Thám hoa Phan Kính (1715 - 2025) là dịp để Hà Tĩnh tôn vinh di sản của danh nhân, đồng thời khơi dậy và phát huy truyền thống yêu nước, ý chí vượt khó vươn lên trong các tầng lớp nhân dân.
Ông được xem là một trong những thí sinh đặc biệt nhất trong lịch sử khoa cử Việt Nam. Suốt cuộc đời đèn sách, ông dự thi đến 21 lần, nhưng chỉ 2 lần đỗ tú tài, mãi đến năm 82 tuổi mới đỗ cử nhân.
Dù sinh ra trong gia đình quý tộc nhưng Nguyễn Du chọn hòa mình với các tầng lớp nhân dân, nhất là quãng thời gian ở quê nội Tiên Điền (Hà Tĩnh). Điều đó đã giúp Đại thi hào hiểu rõ hơn cuộc sống người dân, yêu thương mọi kiếp người, hun đúc trái tim nhân đạo rộng lớn.