Ngôi nhà ở vùng nông thôn Hà Tĩnh lên tạp chí kiến trúc hàng đầu của Mỹ

(Baohatinh.vn) - Tạp chí kiến trúc danh tiếng của Mỹ Archdaily mới đây giới thiệu ngôi nhà có tên Phong House do kiến trúc sư Nguyễn Anh Đức cùng các cộng sự Trương Anh Đức, Lê Trang thiết kế ở thị trấn Tiên Điền, huyện Nghi Xuân (Hà Tĩnh).

Ngôi nhà được đặt tên Phong House do Công ty Kiến trúc Dom Architect Studio (TP Hà Tĩnh) thiết kế, có diện tích 190 m2, mặt tiền hướng Nam.

Ngôi nhà được đặt tên Phong House do Công ty Kiến trúc Dom Architect Studio (TP Hà Tĩnh) thiết kế, có diện tích 190 m2, mặt tiền hướng Nam.

Theo chia sẻ của Dom Architect Studio, đây là ngôi nhà của một vợ chồng trẻ và con gái 5 tuổi. Thời gian tới gia đình sẽ có thêm thành viên nhưng họ không muốn xây những phòng ngủ được thiết kế sẵn, đồng thời đảm bảo chi phí xây dựng ở mức tối thiểu.

Theo chia sẻ của Dom Architect Studio, đây là ngôi nhà của một vợ chồng trẻ và con gái 5 tuổi. Thời gian tới gia đình sẽ có thêm thành viên nhưng họ không muốn xây những phòng ngủ được thiết kế sẵn, đồng thời đảm bảo chi phí xây dựng ở mức tối thiểu.

Khi khảo sát khu đất của gia đình, các KTS nhận thấy điểm chung trong kiến trúc các ngôi nhà ở địa phương đó là luôn có sân trước rộng, sau đó là hiên dài với lối đi vào nhà. Bên trong không gian sinh hoạt, ranh giới giữa trong và ngoài được phân định rõ nhờ hệ thống cửa. Từ đó, các KTS đã nghiên cứu và đề xuất giải pháp tái sử dụng kết cấu xuyên suốt và xây dựng lại không gian của ngôi nhà.

Khi khảo sát khu đất của gia đình, các KTS nhận thấy điểm chung trong kiến ​​trúc các ngôi nhà ở địa phương đó là luôn có sân trước rộng, sau đó là hiên dài với lối đi vào nhà. Bên trong không gian sinh hoạt, ranh giới giữa trong và ngoài được phân định rõ nhờ hệ thống cửa. Từ đó, các KTS đã nghiên cứu và đề xuất giải pháp tái sử dụng kết cấu xuyên suốt và xây dựng lại không gian của ngôi nhà.

Cấu trúc ngôi nhà được sắp xếp theo nhiều tỷ lệ, với độ sâu và chiều cao khác nhau. Toàn bộ không gian sinh hoạt chung được mở ra thiên nhiên thông qua các khoảng hiên dài, nhờ vậy, ánh sáng tự nhiên gián tiếp đi vào cũng vừa phải và dễ chịu

Cấu trúc ngôi nhà được sắp xếp theo nhiều tỷ lệ, với độ sâu và chiều cao khác nhau. Toàn bộ không gian sinh hoạt chung được mở ra thiên nhiên thông qua các khoảng hiên dài, nhờ vậy, ánh sáng tự nhiên gián tiếp đi vào cũng vừa phải và dễ chịu

Giải pháp này tạo ra sự kết nối mạnh mẽ cho không gian trong ngôi nhà bằng cách phân định rõ các yếu tố giữa không gian chung và riêng, bên trong và bên ngoài. Từ đó tạo ra yêu cầu về một không gian (phòng ngủ) riêng biệt trong tương lai.

Giải pháp này tạo ra sự kết nối mạnh mẽ cho không gian trong ngôi nhà bằng cách phân định rõ các yếu tố giữa không gian chung và riêng, bên trong và bên ngoài. Từ đó tạo ra yêu cầu về một không gian (phòng ngủ) riêng biệt trong tương lai.

Các giải pháp thông gió, chiếu sáng và góc nhìn được tính toán dựa trên đặc điểm kết cấu không gian. Hệ thống cửa trước được mở tối đa để khai thác gió Nam mát mẻ vào nhà. Không khí được luân chuyển từ dưới lên trên và từ trước ra sau nhờ hệ thống cửa mở trên mái và phía sau nhà.

Các giải pháp thông gió, chiếu sáng và góc nhìn được tính toán dựa trên đặc điểm kết cấu không gian. Hệ thống cửa trước được mở tối đa để khai thác gió Nam mát mẻ vào nhà. Không khí được luân chuyển từ dưới lên trên và từ trước ra sau nhờ hệ thống cửa mở trên mái và phía sau nhà.

Để cân đối được bài toán về kinh tế và thẩm mỹ, các KTS đã chọn phong cách kiến trúc thô mộc giản dị, sử dụng vật liệu xây dựng phổ thông, tính toán công năng và diện tích vừa đủ cho 2 vợ chồng và trẻ nhỏ

Để cân đối được bài toán về kinh tế và thẩm mỹ, các KTS đã chọn phong cách kiến trúc thô mộc giản dị, sử dụng vật liệu xây dựng phổ thông, tính toán công năng và diện tích vừa đủ cho 2 vợ chồng và trẻ nhỏ

KTS Nguyễn Anh Đức chia sẻ: "Chúng tôi hy vọng ngôi nhà dành cho thế hệ mới vẫn giữ được nét truyền thống của các thế hệ trước. Không gian của ngôi nhà sẽ thay đổi theo nhu cầu trong tương lai nhưng vẫn giữ được bản chất của kết cấu nhà ở bản địa mà chúng tôi xây dựng".

KTS Nguyễn Anh Đức chia sẻ: "Chúng tôi hy vọng ngôi nhà dành cho thế hệ mới vẫn giữ được nét truyền thống của các thế hệ trước. Không gian của ngôi nhà sẽ thay đổi theo nhu cầu trong tương lai nhưng vẫn giữ được bản chất của kết cấu nhà ở bản địa mà chúng tôi xây dựng".

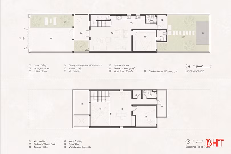
Bản vẽ ngôi nhà

Bản vẽ ngôi nhà

(Ảnh: Hoàng Lê, Archdaily)

Đọc thêm

Có một Hà Tĩnh quen mà lạ

Có một Hà Tĩnh quen mà lạ

Xuyên suốt hành trình ghé thăm, “chạm” vào từng điểm đến, Hà Tĩnh trong tôi hiện lên không ồn ào, không hào nhoáng mà sâu lắng, mộc mạc và giàu bản sắc. Đó là miền quê để đến chậm, cảm lâu và khi rời đi vẫn còn muốn trở lại.
Noel an lành lan tỏa khắp Hà Tĩnh

Noel an lành lan tỏa khắp Hà Tĩnh

Khi sương lạnh phủ lên màn đêm những ngày cuối năm, các giáo xứ trên địa bàn Hà Tĩnh lại rực rỡ ánh đèn, trang hoàng lộng lẫy, mang đến một mùa Giáng sinh ấm áp, an lành và tràn đầy niềm vui.
Độc đáo guồng xe nước ở xã Vũ Quang

Độc đáo guồng xe nước ở xã Vũ Quang

Giữa đời sống hiện đại, những guồng xe nước ở xã Vũ Quang (Hà Tĩnh) như giữ lại kí ức của làng quê và thể hiện sự sáng tạo của người dân trong lao động, sản xuất.
Điểm nhấn kiến trúc giữa lòng Thành Sen

Điểm nhấn kiến trúc giữa lòng Thành Sen

Cụm biểu tượng với hình tượng hoa đăng không chỉ tạo dấu ấn kiến trúc mà còn thể hiện sức sống, khát vọng phát triển và bản sắc của Thành Sen (Hà Tĩnh) trong giai đoạn mới.
Bình yên Thạch Lạc

Bình yên Thạch Lạc

Xã Thạch Lạc (tỉnh Hà Tĩnh) không chỉ là miền đất có nhiều lợi thế để phát triển nông nghiệp gắn với du lịch sinh thái, du lịch trải nghiệm mà còn là miền quê giàu bản sắc văn hóa và di sản. Đến với mảnh đất này, ai cũng dễ dàng cảm nhận được sự trù phú, tươi mới của vùng quê đang chuyển mình từng ngày.
Rộn ràng check-in hang đá Bê-lem mùa Noel

Rộn ràng check-in hang đá Bê-lem mùa Noel

Thời điểm này, hang đá Bê-lem mừng đón Giáng sinh tại nhiều nhà thờ ở Hà Tĩnh đã rực sáng, thu hút đông đảo người dân và du khách đến tham quan, check-in.
 Chữ “tâm” sáng mãi muôn đời...

Chữ “tâm” sáng mãi muôn đời...

Lễ kỷ niệm 260 năm Ngày sinh Đại thi hào Nguyễn Du đã khép lại nhưng dư âm về nhân cách, tài năng của danh nhân văn hóa thế giới sẽ còn lắng đọng mãi trong lòng người dân Hà Tĩnh cũng như du khách muôn phương. Trong đó, chữ “tâm” như ngọn hải đăng để hậu thế soi chiếu, làm hành trang cho sự phát triển của quê hương, đất nước.
Nhật ký phố phường Hà Tĩnh

Nhật ký phố phường Hà Tĩnh

Giữa phố thị đang từng ngày đổi thay, vẫn có những nhịp sống lặng lẽ làm nên linh hồn của phố phường Hà Tĩnh, đủ để ai đi qua cũng nhớ, người ở lại thêm thương.
Đại thi hào Nguyễn Du - niềm tự hào của dân tộc Việt Nam và quê hương Hà Tĩnh

Đại thi hào Nguyễn Du - niềm tự hào của dân tộc Việt Nam và quê hương Hà Tĩnh

Hà Tĩnh - vùng đất giàu truyền thống văn hóa, cách mạng, tự hào là quê hương của Đại thi hào Nguyễn Du - nhà thơ thiên tài của dân tộc, người đã góp phần làm rạng rỡ nền văn chương, văn hóa Việt Nam trên trường quốc tế. Với di sản Truyện Kiều mang tầm vóc nhân loại, Nguyễn Du để lại cho quê hương và đất nước một giá trị tinh thần vô giá. Vì lẽ đó, Hà Tĩnh luôn coi việc bảo tồn, lan tỏa các giá trị di sản của Đại thi hào là nhiệm vụ quan trọng trong xây dựng và phát triển văn hóa, góp phần khẳng định vị thế của tỉnh trong giai đoạn mới.
Ngàn năm vọng mãi!

Ngàn năm vọng mãi!

Hơn 200 năm đã qua, những áng thơ của Đại Thi hào Nguyễn Du vẫn tỏa sáng, lay động, thức tỉnh hàng triệu người trên thế giới. “Nghìn năm sau nhớ Nguyễn Du/Tiếng thương như tiếng mẹ ru những ngày” (Tố Hữu). Di sản cụ để lại cho đời không chỉ trăm năm, mà là nghìn năm, trở thành tinh hoa của tâm hồn Việt, bản sắc Việt, văn chương Việt.
Đất Hồng Lam nở hoa nhân kiệt

Đất Hồng Lam nở hoa nhân kiệt

Tự bao đời, Hà Tĩnh được nhắc đến là miền “địa linh, nhân kiệt”, nơi hội tụ những giá trị bền sâu về lịch sử, văn hóa và con người. Nơi đây đã sản sinh ra nhiều văn nhân, hào kiệt, trong đó, tiêu biểu là Đại thi hào Nguyễn Du.
Giúp học sinh thấm Truyện Kiều qua thư pháp

Giúp học sinh thấm Truyện Kiều qua thư pháp

Từ tình yêu và trăn trở gìn giữ giá trị văn hóa dân tộc, cô giáo Trần Thị Ngọc Xuyến - Hiệu trưởng Trường Tiểu học Tiên Điền (Hà Tĩnh) đã khởi xướng hành trình đưa Truyện Kiều vào học đường bằng những nét thư pháp truyền thống.
Truyện Kiều – Sứ giả của hòa bình

Truyện Kiều – Sứ giả của hòa bình

Truyện Kiều được coi là “cây cầu” văn hóa bền vững, đưa giá trị truyền thống của Việt Nam vươn xa, trở thành sứ giả hòa bình và nhân ái trong hành trình kết nối các dân tộc.
Hà Tĩnh - Bắc Ninh “Chiếc nôi nuôi dưỡng trang Kiều”

Hà Tĩnh - Bắc Ninh “Chiếc nôi nuôi dưỡng trang Kiều”

Từ mối duyên của Tể tướng Nguyễn Nghiễm và bà Trần Thị Tần, một cuộc kết hợp tưởng như chỉ là chuyện nhân duyên của 2 dòng họ Nguyễn - Trần đã để lại dấu ấn sâu đậm trong lịch sử dân tộc khi sinh ra Đại thi hào Nguyễn Du. Đó cũng là sợi dây bền chặt nối nghĩa tình quê hương Hà Tĩnh - Bắc Ninh từ quá khứ đến hôm nay.
Khi doanh nhân đam mê sưu tầm di sản Truyện Kiều

Khi doanh nhân đam mê sưu tầm di sản Truyện Kiều

Gần đây, nhiều du khách trong và ngoài nước đến Hội An (TP Đà Nẵng) bày tỏ thích thú khi được khám phá, tìm hiểu về di sản Truyện Kiều của Đại thi hào Nguyễn Du tại CSO Gallery của ông Trần Hữu Tài - một doanh nhân đam mê nghiên cứu, sưu tầm di sản văn hóa.