
Chủ nhân căn nhà cách trung tâm thành phố Bến Tre khoảng 10 km là đôi vợ chồng trẻ với hai cậu con trai nhỏ. Sau những giờ làm việc căng thẳng, họ muốn trở về không gian ấm áp và yên tĩnh, có thể nhìn ngắm cây xanh, ánh nắng, mây trời và cảm nhận làn gió mát mỗi buổi chiều.

Đặc biệt, hai vợ chồng muốn tận dụng khoảng thời gian ít ỏi buổi chiều tối để trò chuyện, chơi đùa và học cùng các con. Vì thế, khi chọn giải pháp bố cục không gian, kiến trúc sư đã ưu tiên tính kết nối.

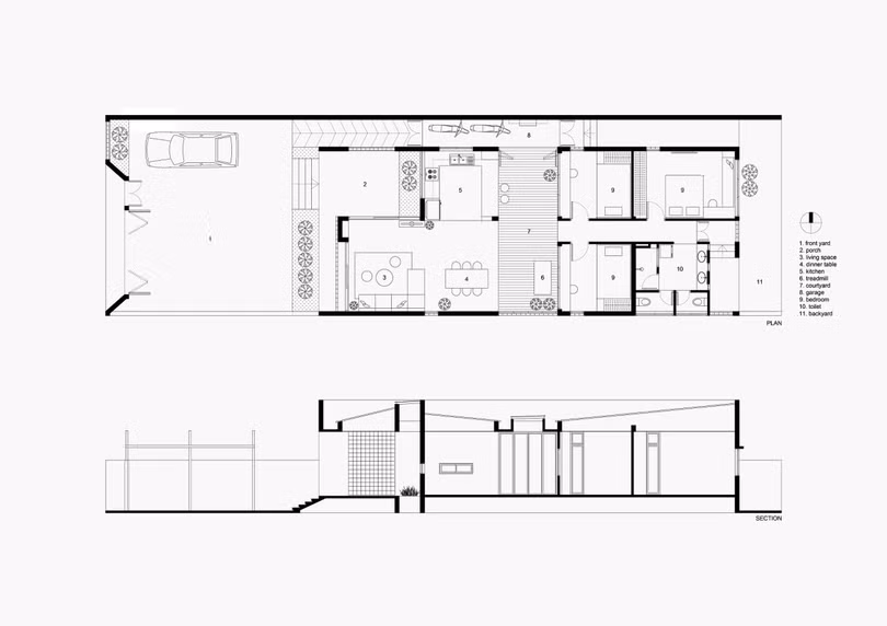
Căn nhà rộng 170 m2, mặt tiền hướng Tây, xây một tầng. Cửa chính quay về hướng Bắc, phía trước có sảnh đệm lớn nhằm tránh ánh nắng trực tiếp. Sảnh này cũng là khoảng thư giãn của gia chủ vào mỗi buổi chiều tối.

Hệ thống thông gió tự nhiên gồm lớp gạch thông gió và lớp cửa kính lùa xuyên suốt công trình. Giải pháp này tránh nắng gắt, đảm bảo sự thông thoáng và sự kín đáo cần thiết cho gia đình.

Bên trong, không gian chia làm khu vực sinh hoạt chung và khu vực nghỉ ngơi.

Không gian liên thông, tiết chế vách ngăn để đem tới cảm giác rộng rãi, cởi mở.

Khu vực sinh hoạt chung và khu vực nghỉ ngơi ngăn cách nhau bằng khoảng sân giữa nhà.

Khoảng sân giữa nhà có chức năng linh hoạt. Nó vừa là nơi thư giãn, tập thể dục, vui chơi vừa là góc làm việc, nhờ đó tăng cường sự kết nối giữa bố mẹ và con cái.

Phòng ngủ của hai trẻ em được bố trí hệ cửa sổ kính hướng ra sân.

Nhờ đó, dù ở không gian nào, bố mẹ vẫn dễ dàng quan sát, trò chuyện và chơi đùa với con cái.

Để các thành viên gia đình thêm thư thái khi ở nhà, các phòng đều nhìn ra hướng có cây xanh.

Mảng xanh kết hợp với gạch thông gió bằng đất nung và nền sơn trắng tạo nên không gian hiện đại pha chất thô mộc hòa lẫn với thiên nhiên.
Công trình hoàn thiện năm 2022 với chi phí 2,2 tỷ đồng.