(Baohatinh.vn) - Sự kiện quy mô lớn này diễn ra tại 1 điểm cầu trung tâm, 11 điểm cầu chính và 67 điểm cầu trực tuyến trong cả nước, trong đó Hà Tĩnh có 3 điểm cầu với 6 dự án.
Sáng nay (19/12), tại 34 địa phương trên cả nước đồng loạt diễn ra "Lễ Khánh thành, thông xe kỹ thuật, khởi công các dự án, công trình chào mừng 79 năm Ngày toàn quốc kháng chiến và chào mừng Đại hội đại biểu toàn quốc lần thứ XIV của Đảng”.
Hà Tĩnh có 3 điểm cầu với 6 dự án được khởi công, khởi động dịp này. Trong ảnh phối cảnh dự án Bảo tàng tỉnh Hà Tĩnh.
Buổi lễ diễn ra tại điểm cầu trung tâm với lễ khởi công Dự án đầu tư xây dựng Khu đô thị thể thao Olympic (tại xã Thượng Phúc, TP Hà Nội) có tổng mức đầu tư 925.000 tỷ đồng, do UBND TP Hà Nội là cơ quan chủ quản. Ngoài ra, còn có 11 điểm cầu chính tại các tỉnh/thành gồm: Lào Cai, Bắc Ninh, Quảng Ninh, Hà Nội, Huế, Quảng Ngãi, Lâm Đồng, TP HCM, An Giang, TP Cần Thơ, Đồng Nai và 67 điểm cầu trực tuyến, trong đó tại Hà Tĩnh có 3 điểm cầu trực tuyến.
Phối cảnh Khu đô thị mới Xuân Thành - giai đoạn 1 do Công ty CP đầu tư Phát triển Harumi đầu tư.
Theo thông tin từ Bộ Xây dựng, có 234 công trình, dự án trên địa bàn 34 tỉnh/thành phố đủ điều kiện khởi công, khánh thành, thông xe kỹ thuật trong sáng nay. Trong đó, khởi công 148 công trình, dự án; khánh thành, thông xe kỹ thuật 86 công trình, dự án. Theo phân cấp quản lý, có 38 dự án của các bộ, ngành; 39 dự án của các tập đoàn, tổng công ty; 157 dự án của các địa phương.
Tổng mức đầu tư của các dự án, công trình trên 3,4 triệu tỷ đồng (trong đó nguồn vốn Nhà nước tại 96 dự án hơn 627 nghìn tỷ đồng, chiếm 18% tổng mức và 138 dự án từ nguồn vốn khác là hơn 2,79 triệu tỷ đồng, chiếm 82% tổng mức).
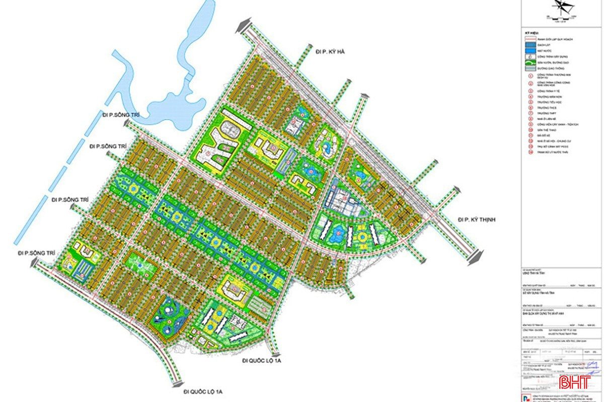
Phối cảnh và Quy hoạch chi tiết Dự án Khu đô thị mới Kỳ Trinh (phường Sông Trí).
Hòa cùng cả nước, trên địa bàn Hà Tĩnh có 3 điểm cầu với 6 dự án khởi công, khởi động gồm: Lễ khởi công Dự án đầu tư xây dựng Bảo tàng Hà Tĩnh tại tổ dân phố 2 Nguyễn Du, đường Xô Viết Nghệ Tĩnh, phường Thành Sen; Lễ khởi động chung 4 dự án của Tập đoàn Vingroup đầu tư tại Khu công nghiệp Vinhomes Vũng Áng, phường Vũng Áng; Lễ khởi công Dự án Khu đô thị mới Xuân Thành - giai đoạn 1 tại xã Tiên Điền.
Quang cảnh tại Lễ khởi công Dự án đầu tư xây dựng Bảo tàng Hà Tĩnh tại tổ dân phố 2 Nguyễn Du, đường Xô Viết Nghệ Tĩnh, phường Thành Sen.
Tiếp nối các lễ khởi công, khánh thành các dự án lớn ngày 19/4/2025 (kỷ niệm 50 năm giải phóng miền Nam, thống nhất đất nước), ngày 19/8/2025 (kỷ niệm 80 năm Quốc khánh), sự kiện hôm nay không chỉ có ý nghĩa vào dịp kỷ niệm 79 năm Ngày toàn quốc kháng chiến (19/12/1946 - 19/12/2025) và chào mừng Đại hội XIV của Đảng mà còn tạo động lực thúc đẩy tăng trưởng kinh tế 2 con số trong những năm tới.
Chương trình được livestream trên các nền tảng số Báo Hà Tĩnh từ 8h; phát trực tiếp từ 9h trên sóng Truyền hình Hà Tĩnh và livestream đồng thời trên tất cả các nền tảng số của Báo và phát thanh, truyền hình Hà Tĩnh.
Trước anh linh các anh hùng liệt sĩ, đoàn công tác các địa phương (trong đó có Hà Tĩnh) bày tỏ lòng thành kính, biết ơn đối với những người con đã anh dũng hy sinh để bảo vệ chủ quyền biển đảo của Tổ quốc.
Theo xác định của Tổ công tác tỉnh, Hội đồng bồi thường huyện Kỳ Anh (cũ) đã thực hiện chính sách hỗ trợ chuyển đổi nghề, tạo việc làm đối với các hộ dân bị ảnh hưởng bởi Dự án cấp nước cho Khu kinh tế Vũng Áng tại xã Kỳ Thượng là đúng quy định pháp luật, phù hợp với thực tiễn và các chính sách hỗ trợ được áp dụng tại thời điểm thực hiện.
Hướng tới kỷ niệm 85 năm Ngày thành lập Đội TNTP Hồ Chí Minh (15/5/1941 - 15/5/2026), thiếu nhi Hà Tĩnh đang sôi nổi tham gia nhiều hoạt động thiết thực, ý nghĩa.
Đồng chí Nguyễn Hồng Lĩnh - Phó Bí thư Thường trực Tỉnh ủy, Chủ tịch HĐND tỉnh Hà Tĩnh đề nghị các đại biểu phát huy trách nhiệm, tâm huyết, đóng góp vào thành công chung của Đại hội đại biểu toàn quốc MTTQ Việt Nam lần thứ XI.
Chuyến thăm cấp Nhà nước tới Sri Lanka của Tổng Bí thư, Chủ tịch nước lần này góp phần củng cố mối quan hệ hữu nghị truyền thống, thắt chặt tình cảm hữu nghị chân thành giữa lãnh đạo, nhân dân 2 nước.
Tiếp nối, lan tỏa tinh thần nhân đạo của phong trào Chữ thập đỏ và Trăng lưỡi liềm đỏ quốc tế, Hà Tĩnh đã cụ thể hóa các giá trị nhân văn bằng những hoạt động ý nghĩa, thiết thực.
Chủ tịch UBND tỉnh Hà Tĩnh giao các sở, ban, ngành, đơn vị, UBND các xã, phường chủ động thực hiện nội dung về khuyến khích, bảo vệ cán bộ năng động, sáng tạo, dám nghĩ, dám làm, dám chịu trách nhiệm vì lợi ích chung trong bối cảnh thực hiện Nghị quyết Đại hội XIV.
Đoàn công tác tỉnh Hà Tĩnh xác định đây là hoạt động chính trị quan trọng, nhằm thắt chặt tình đoàn kết quân dân, thực hiện hiệu quả công tác bảo vệ chủ quyền biển, đảo của Tổ quốc.
Nhiều mô hình “Dân vận khéo” được triển khai trên địa bàn Hà Tĩnh đang phát huy hiệu quả thiết thực tại cơ sở, tạo đồng thuận xã hội, góp phần thúc đẩy phát triển KT-XH địa phương.
Trong thiên sử vàng của cuộc kháng chiến chống Pháp, quân và dân Hà Tĩnh đã có những đóng góp quan trọng, vừa bảo vệ vững chắc hậu phương, vừa chi viện sức người, sức của cho tiền tuyến.
Sáng 7/5, Thủ tướng Chính phủ Lê Minh Hưng và đoàn đại biểu cấp cao Việt Nam rời thủ đô Hà Nội lên đường tham dự Hội nghị Cấp cao ASEAN lần thứ 48 tại Cebu, Philippines từ ngày 7 đến 8/5/2026 theo lời mời của Tổng thống nước Cộng hòa Philippines Ferdinand Romualdez Marcos Jr, Chủ tịch ASEAN năm 2026.
Đồng chí Trần Cẩm Tú - Ủy viên Bộ Chính trị, Thường trực Ban Bí thư đề nghị tiếp tục tập trung nâng cao nhận thức của cấp uỷ, tổ chức đảng, nhất là người đứng đầu về công tác PCCC&CNCH; quán triệt tốt phương châm “lấy phòng ngừa là chính”.
Từ 13/3 đến 7/5/1954, dưới sự lãnh đạo của Đảng, Chủ tịch Hồ Chí Minh và Bộ Chỉ huy chiến dịch, quân và dân ta đã làm nên Chiến thắng Điện Biên Phủ – trận quyết chiến chiến lược mang tầm vóc thời đại. Sau 56 ngày đêm chiến đấu kiên cường, mưu trí, sáng tạo, toàn bộ tập đoàn cứ điểm Điện Biên Phủ bị tiêu diệt, tạo bước ngoặt quyết định buộc Pháp phải ngồi vào bàn đàm phán và ký Hiệp định Giơ-ne-vơ ngày 21/7/1954.
Nhận lời mời của Tổng thống Cộng hòa xã hội chủ nghĩa dân chủ Sri Lanka Anura Kumara Dissanayake, Tổng Bí thư Ban Chấp hành Trung ương Đảng Cộng sản Việt Nam, Chủ tịch nước Cộng hòa xã hội chủ nghĩa Việt Nam Tô Lâm cùng Đoàn đại biểu cấp cao Việt Nam thăm cấp Nhà nước tới Cộng hòa xã hội chủ nghĩa dân chủ Sri Lanka từ ngày 7 đến 8/5.
Hai bên nhất trí nâng tầm quan hệ song phương lên Đối tác Chiến lược Toàn diện Tăng cường trên tinh thần "Chia sẻ tầm nhìn, hội tụ chiến lược và hợp tác thực chất," đưa hợp tác đi vào chiều sâu.
Tháng Công nhân năm 2026, Mitraco Hà Tĩnh sẽ triển khai nhiều hoạt động chăm lo cho người lao động và xây dựng môi trường làm việc an toàn, chuyên nghiệp.
Phường Hoành Sơn (Hà Tĩnh) tổ chức buổi tọa đàm nhằm góp phần nâng cao kỹ năng tiếp cận, chắt lọc thông tin trên mạng xã hội cho đoàn viên, thanh niên trước âm mưu, thủ đoạn chống phá của các thế lực thù địch.
Bí thư Tỉnh ủy Hà Tĩnh Nguyễn Duy Lâm yêu cầu các sở, ban, ngành, địa phương tập trung tháo gỡ vướng mắc, khó khăn, đặc biệt là trong công tác giải phóng mặt bằng nhằm đảm bảo tiến độ hạ tầng KCN Gia Lách mở rộng.
Nhận lời mời của Thủ tướng Cộng hòa Ấn Độ Narendra Modi, Tổng Bí thư, Chủ tịch nước Tô Lâm cùng Đoàn đại biểu cấp cao Việt Nam thăm cấp Nhà nước Cộng hòa Ấn Độ từ ngày 5-7/5/2026.
Bí thư Tỉnh ủy Hà Tĩnh Nguyễn Duy Lâm đề nghị chủ đầu tư chủ động huy động nguồn lực, phối hợp chặt chẽ với chính quyền địa phương đẩy nhanh công tác chi trả bồi thường giải phóng mặt bằng; tăng tốc thi công, đảm bảo tiến độ xây dựng KCN Gia Lách mở rộng.
Đồng chí Nguyễn Hồng Lĩnh - Phó Bí thư Thường trực Tỉnh ủy Hà Tĩnh yêu cầu cấp ủy, tổ chức đảng, cơ quan, đơn vị khẩn trương tổ chức quán triệt, cụ thể hóa các chủ trương, quy định của Trung ương và của tỉnh thành chương trình, kế hoạch, tạo chuyển biến thực chất trong công tác nội chính, phòng, chống tham nhũng, lãng phí, tiêu cực và cải cách tư pháp.
Thủ tướng Chính phủ vừa ban hành Công điện yêu cầu các bộ, ngành, địa phương đồng loạt ra quân đấu tranh, ngăn chặn và xử lý nghiêm các hành vi xâm phạm quyền sở hữu trí tuệ trên phạm vi toàn quốc từ ngày 7/5 đến hết ngày 30/5/2026.
Chủ tịch UBND tỉnh Hà Tĩnh yêu cầu đổi mới mạnh mẽ tư duy, thực hiện nhiệm vụ theo nguyên tắc "6 rõ": rõ người, rõ việc, rõ thời gian, rõ trách nhiệm, rõ sản phẩm, rõ kiểm tra, giám sát; đẩy mạnh ứng dụng công nghệ thông tin, chuyển đổi số...
Người phát ngôn Bộ Ngoại giao yêu cầu Trung Quốc tôn trọng chủ quyền của Việt Nam đối với quần đảo Hoàng Sa, khi Bắc Kinh ban bố lệnh cấm đánh bắt cá ở Biển Đông.
Từ 31/5, cán bộ không chuyên trách cấp xã sẽ chấm dứt hoạt động theo chủ trương của Bộ Chính trị. Để bảo đảm ổn định tổ chức và quyền lợi của đội ngũ này, Chính phủ đã định hướng 3 phương án sắp xếp.
Mô hình xã hội xã hội chủ nghĩa Việt Nam được xác lập qua các văn kiện Đảng với 8 đặc trưng cốt lõi, hướng tới mục tiêu dân giàu, nước mạnh, dân chủ, công bằng, văn minh.
Hưởng ứng Tháng Công nhân, nhiều doanh nghiệp ở Hà Tĩnh đã tổ chức khám sức khỏe định kỳ cho người lao động, góp phần nâng cao chất lượng nguồn nhân lực, bảo đảm ổn định sản xuất.
Thủ tướng Lê Minh Hưng chỉ đạo tiếp tục rà soát, cắt giảm, đơn giản hóa các thủ tục, điều kiện kinh doanh trong lĩnh vực đánh giá tác động môi trường, cấp phép xây dựng, phòng cháy, chữa cháy…
Chiều ngày 4/5, Thủ tướng Chính phủ Lê Minh Hưng chủ trì phiên họp Chính phủ thường kỳ tháng 4/2026 - phiên họp Chính phủ thường kỳ đầu tiên của Chính phủ khóa XVI.
Xin chào, Tôi là Chatbot của Báo Hà Tĩnh
Hãy hỏi tôi bất kỳ điều gì bạn cần biết về Báo Hà Tĩnh nhé. Tôi sẵn sàng hỗ trợ!